
3D viewer
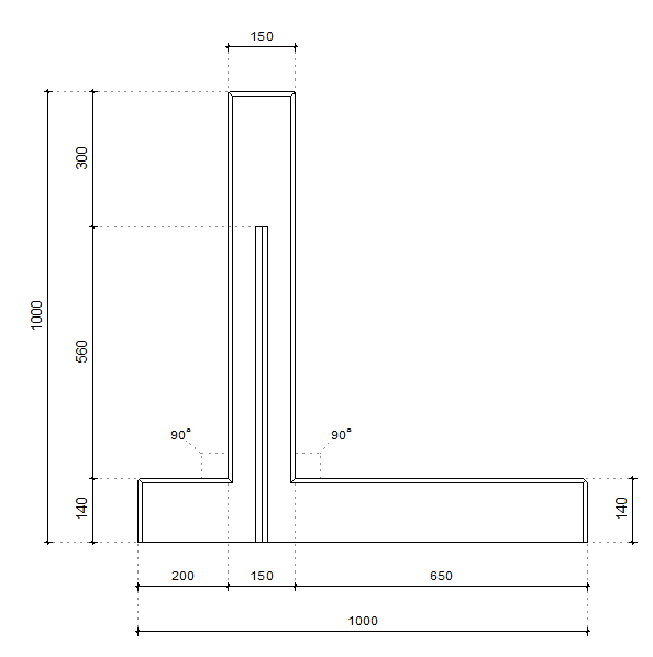
Dessin technique
Murs de soutènement LR (avec talon) - LR100H
Disponible en plusieurs longueurs, le mur de soutènement LR avec talon est spécialement conçu pour les applications avec les charges les plus lourdes (H=heavy) dans le...
En savoir plus
Description
Disponible en plusieurs longueurs, le mur de soutènement LR avec talon est spécialement conçu pour les applications avec les charges les plus lourdes (H=heavy) dans le domaine du terrassement, de la construction des routes et des ouvrages hydrauliques. Le mur de soutènement LR présente toujours un bord supérieur d’une épaisseur de 150 mm et est doté d'un système spécial de couplage, qui permet de placer ce mur à différentes hauteurs.
* Le talon renforce la stabilité pour pouvoir supporter une charge plus lourde.
* Le mur de soutènement a une hauteur totale nette, ce qui le rend facile à mesurer et à installer.
* Le bord inférieur supporte la charge.
* L'arrière coudé crée un joli mur de soutènement droit avec une stabilité dimensionnelle après l'installation.
* Si vous le souhaitez, le talon peut être doté, par exemple, d’un gabion ou d’un grillage.
* Grâce à sa conception robuste, ce mur de soutènement est idéal pour les applications environnementales lourdes (chimiques).
* Ce mur de soutènement a une durée de vie de pas moins de 100 ans
* Le talon renforce la stabilité pour pouvoir supporter une charge plus lourde.
* Le mur de soutènement a une hauteur totale nette, ce qui le rend facile à mesurer et à installer.
* Le bord inférieur supporte la charge.
* L'arrière coudé crée un joli mur de soutènement droit avec une stabilité dimensionnelle après l'installation.
* Si vous le souhaitez, le talon peut être doté, par exemple, d’un gabion ou d’un grillage.
* Grâce à sa conception robuste, ce mur de soutènement est idéal pour les applications environnementales lourdes (chimiques).
* Ce mur de soutènement a une durée de vie de pas moins de 100 ans
Téléchargements
- LR100H_FR.pdf
- LR100H.ifc
- LR100H.dwg
- LRH_Plandecharge_2_FR.pdf
- Certificats
- NL_BSB_productcertificaat_vooraf-vervaardigde-betonproducten_17-05-2019_K85568-03.pdf
- CPR_conformiteitscertificaat-van-de-productiecontrole-in-de-fabriek_17-05-2019_CPR-56074-05.pdf
- CSC-certificaat Goud 141-CSC19-2019.pdf
- Zertifikat über die Konformität der werkseigenen Produktionskontrolle (CE) 0793-CPR-1329.6.967-1.pdf
- Zertifikat über die verwendbarkeit in Bauwerken 1329.7.119-1.pdf
- Gütezeichen-Urkunde 1329-M-2020.pdf
- Übereinstimmungszertifikat Beton nach Eigenschaften 1329.1.2040.-1.pdf
- KOMO_productcertificaat_bouwelemten-van-beton_10-7-2023_K2663-12.pdf
Caractéristiques
Mélange de béton | 3rd Generation self-compacting C50/60 | Armature en acier | B500 |
---|---|---|---|
Poids | 2470kg (L = 3995mm) | Enrobage | 45mm |
Tolérance dimensionelle | +/- 5mm | Classe visible de béton | Tous les côtés de visibilité A (supérieur) |
Dispositif de levage | Aucun, endroits avec la pince | Garantie du produit | 10 ans |
Classe écologique | XA3, XC4, XD3, XS3, XF4 | Vie de conception | 100 ans |
Options supplémentaires
Découpe et autres modifications

Raccord pour mur de cloisonnement

Raccord pour mur U

Biseau

Solution d'angle standard


Découpe et autres modifications
Si vous le souhaitez, les murs de soutènement peuvent être raccourcis, spécialement creusés ou adaptés. Par exemple, nos murs de soutènement peuvent être équipés d'encastrements spéciaux tels que des gaines, des ancrages de levage ou des piquets (pièces de renfort en saillie pour le coulage). Les murs de soutènement peuvent également être pourvus d'un bord supérieur épaissi pour un monter une structure sur le dessus du mur de soutènement ou d’un relief spécial.
Si vous pouvez nous fournir un croquis de votre situation, nous concevrons la modification pour vous. De cette façon, vous êtes assuré d'obtenir la bonne solution sur mesure.
Si vous pouvez nous fournir un croquis de votre situation, nous concevrons la modification pour vous. De cette façon, vous êtes assuré d'obtenir la bonne solution sur mesure.
-
Nous travaillons de manière durable, même pour un projet sur mesure. En nous informant à temps, nous pouvons traiter votre modification au préalable dans notre production. Nous évitons ainsi tout gaspillage inutile de matériaux ou tout travail ultérieur de découpe.
-
Si une modification d'un mur engendre des déchets inévitables, nous recyclons les chutes de béton et nous les réutilisons dans notre processus de production.

Raccord pour mur de cloisonnement
Les murs de cloisonnement peuvent être facilement combinés à d’autres types de murs, par exemple dans le cas d'un système de stockage ou d’un silo-couloir qui ne doit laisser passer aucune humidité. Pour ce faire, il est essentiel que le point de raccord du mur de cloisonnement présente la bonne forme pour qu'il puisse se fixer complètement à l’autre mur.
Si vous pouvez nous fournir un croquis de votre situation, nous concevrons la solution d'angle pour vous. De cette façon, vous êtes assuré d'obtenir la bonne solution sur mesure.
Si vous pouvez nous fournir un croquis de votre situation, nous concevrons la solution d'angle pour vous. De cette façon, vous êtes assuré d'obtenir la bonne solution sur mesure.
-
Nous travaillons de manière durable, même pour un projet sur mesure. En nous informant à temps, nous pouvons traiter votre modification au préalable dans notre production. Nous évitons ainsi tout gaspillage inutile de matériaux ou tout travail ultérieur de découpe.
-
Si une modification d'un mur engendre des déchets inévitables, nous recyclons les chutes de béton et nous les réutilisons dans notre processus de production.

Raccord pour mur U
Les murs de cloisonnement U peuvent être facilement combinés à d’autres types de murs, par exemple dans le cas d'un système de stockage ou d’un silo-couloir qui ne doit laisser passer aucune humidité. Pour ce faire, il est essentiel que le point de raccord du mur U présente la bonne forme pour qu'il puisse se fixer complètement à l’autre mur.
Si vous pouvez nous fournir un croquis de votre situation, nous concevrons la solution d'angle pour vous. De cette façon, vous êtes assuré d'obtenir la bonne solution sur mesure.
Si vous pouvez nous fournir un croquis de votre situation, nous concevrons la solution d'angle pour vous. De cette façon, vous êtes assuré d'obtenir la bonne solution sur mesure.
-
Nous travaillons de manière durable, même pour un projet sur mesure. En nous informant à temps, nous pouvons traiter votre modification au préalable dans notre production. Nous évitons ainsi tout gaspillage inutile de matériaux ou tout travail ultérieur de découpe.
-
Si une modification d'un mur engendre des déchets inévitables, nous recyclons les chutes de béton et nous les réutilisons dans notre processus de production.

Biseau
Si vous souhaitez une biseau ou un biseau qui s’étend sur plusieurs éléments, nous pouvons le réaliser sur mesure.
Si vous pouvez nous fournir un croquis de votre situation, nous concevrons le biseau pour vous. De cette façon, vous êtes assuré d'obtenir la bonne solution sur mesure.
Si vous pouvez nous fournir un croquis de votre situation, nous concevrons le biseau pour vous. De cette façon, vous êtes assuré d'obtenir la bonne solution sur mesure.
-
Nous travaillons de manière durable, même pour un projet sur mesure. En nous informant à temps, nous pouvons traiter votre modification au préalable dans notre production. Nous évitons ainsi tout gaspillage inutile de matériaux ou tout travail ultérieur de découpe.
-
Si une modification d'un mur engendre des déchets inévitables, nous recyclons les chutes de béton et nous les réutilisons dans notre processus de production.

Solution d'angle standard
Une solution d'angle standard à 90 degrés est disponible pour tous nos types de murs de soutènement. Si vous avez besoin d'un angle différent, une solution d'angle peut être réalisée sur mesure.
Si vous pouvez nous fournir un croquis de votre situation, nous concevrons la solution d'angle pour vous. De cette façon, vous êtes assuré d'obtenir la bonne solution sur mesure.
Si vous pouvez nous fournir un croquis de votre situation, nous concevrons la solution d'angle pour vous. De cette façon, vous êtes assuré d'obtenir la bonne solution sur mesure.
-
Nous travaillons de manière durable, même pour un projet sur mesure. En nous informant à temps, nous pouvons traiter votre modification au préalable dans notre production. Nous évitons ainsi tout gaspillage inutile de matériaux ou tout travail ultérieur de découpe.
-
Si une modification d'un mur engendre des déchets inévitables, nous recyclons les chutes de béton et nous les réutilisons dans notre processus de production.